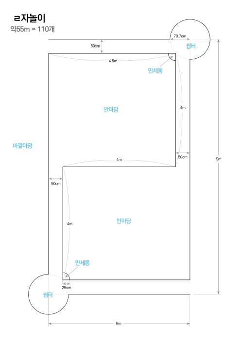
'ㄹ'자놀이 도면

위의 이미지는 ㄹ자놀이의 규격과 도면입니다.한국 전래의 전통놀이인 ㄹ자놀이의 규격은 정해진 바 없으나초등학생들이 가장 효율적으로 놀이를 즐길 수 있는 규격으로 ㄹ자놀이 도면을 제작하였습니다.(위 ㄹ자놀이 규격 도면의 저작권은 주식회사 라인포인트에 있습니다.) 주식회사 라인포인트는 한국 전래의 여러 가지의 전통놀이를 과학적으로 검토하여 체계화 하였습니다.국내 초등학교 운동장에 가장 알맞은 규격으로 설치해 드리고 있습니다. [LP-6 롱라인 제품 기준 750,200원(시공비 포함)]

주식회사 라인포인트

logo
LOG IN 로그인
  • 회사 소개
    • 인사말
    • 연혁
    • 인증서
  • 제품 소개
    • LP-1
    • LP-3
    • LP-4
    • LP-5
    • LP-6
    • 컬러폴
    • 컬러블록
    • 웨이브블록 (신제품 출시)
  • 자료실
    • 운동장 도면
    • 설계도면 및 보도자료
    • 전통놀이 도면
    • 학교장터 물품번호
    • 납품 실적
  • 쇼핑몰
    • (구)쇼핑몰

      주식회사 라인포인트

      logo logo
      • 회사 소개
        • 인사말
        • 연혁
        • 인증서
      • 제품 소개
        • LP-1
        • LP-3
        • LP-4
        • LP-5
        • LP-6
        • 컬러폴
        • 컬러블록
        • 웨이브블록 (신제품 출시)
      • 자료실
        • 운동장 도면
        • 설계도면 및 보도자료
        • 전통놀이 도면
        • 학교장터 물품번호
        • 납품 실적
      • 쇼핑몰
        • (구)쇼핑몰
          Search 검색
          Log In 로그인
          Cart 장바구니

          주식회사 라인포인트

          logo logo

          주식회사 라인포인트

          logo logo
          • 회사 소개
            • 인사말
            • 연혁
            • 인증서
          • 제품 소개
            • LP-1
            • LP-3
            • LP-4
            • LP-5
            • LP-6
            • 컬러폴
            • 컬러블록
            • 웨이브블록 (신제품 출시)
          • 자료실
            • 운동장 도면
            • 설계도면 및 보도자료
            • 전통놀이 도면
            • 학교장터 물품번호
            • 납품 실적
          • 쇼핑몰
            • (구)쇼핑몰
              Search 검색
              Log In 로그인
              Cart 장바구니

              주식회사 라인포인트

              logo logo
              이용약관
              개인정보처리방침
              사업자정보확인

              상호: 주식회사 라인포인트 | 대표: 강영만 | 개인정보관리책임자: 미입력 | 전화: 1544-9505 | 이메일: linepoint04@naver.com

              주소: 경기도 수원시 팔달구 갓매산로 51, 6층(매산로2가, 에스알프라자23차) | 사업자등록번호: 336-81-00723 | 통신판매: 미입력 | 호스팅제공자: (주)식스샵

              floating-button-img